5/5~16/16吨抓斗、吊钩两用桥式起重机
5/5~16/16吨抓斗、吊钩两用桥式起重机

起重量 Lifting Weight |
t |
5/5 |
10/10 | 16/16 | ||||||||||||||||||||
跨度 Span m | 10.5 |
13.5 |
16.5 |
19.5 |
22.5 |
25.5 |
28.5 |
31.5 | 10.5 |
13.5 |
16.5 |
19.5 |
22.5 |
25.5 |
28.5 | 31.5 | 19.5 | 22.5 | 25.5 | 28.5 | 31.5 | |||
起升高度Max Lifting Height |
m |
20/22 |
18/22 | 22 | ||||||||||||||||||||
工作级别 Working class |
A6 | |||||||||||||||||||||||
速度 Speed |
起升 Lift |
m/min |
40.1/15.4 | 40.26/14.5 | 41.8/13 | |||||||||||||||||||
小车运行 handcar travel |
44.6 | 45.6 | 43.2 | |||||||||||||||||||||
大车运行 crat travel | 113 |
112.5 | 101 | 98 | 87.3 | |||||||||||||||||||
电机 Motor |
起升 Lift |
抓斗 Grab |
Type/ kw |
YZR225-8/22 |
YZR208S-10/37 | YZR315M-10/75 | ||||||||||||||||||
吊钩 Hook |
YZR180L-6/15 | YZR225M-8/22 | YZR250M1-6/37 | |||||||||||||||||||||
小车运行 handcar travel |
YZR132M2-6/3.7 | YZR160M1-6/5.5 | YZR160M2-6/7.5 | |||||||||||||||||||||
大车运行 crat travel | YZR160L-6/11×2 | YZR160L-6/11×2 | YZR200L-8/15×2 | |||||||||||||||||||||
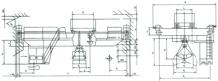
主要尺寸 (mm) Main Size |
B |
6355 | 6485 |
7090 | 6485 | 7145 | 6870 | 7000 | ||||||||||||||||
Ba |
4000 | 4100 |
5000 |
4000 | 4100 |
5000 | 4800 | 5000 | ||||||||||||||||
BX |
3550 | 4420 | 5250 | |||||||||||||||||||||
b |
230 | 230 | 250 | 250 | 300 | |||||||||||||||||||
LX |
2000±2 | 2000±2 | 2500 | |||||||||||||||||||||
H | 1893 | 1943 | 2095 | 2185 | 2418 | 2548 | ||||||||||||||||||
H1 | 2548 | 2608 | 2708 | 2858 | 3008 | 3108 | 3258 | 3408 | 2550 | 2610 | 2760 | 2770 | 2920 | 3070 | 3220 | 3320 | 2924 | 2944 | 3094 | 3194 | 3294 | |||
H2 | 735 | 785 | 785 |
890 | 880 | 1010 | ||||||||||||||||||
S1 |
1520 | 1700(1800) | 2175(2275) | |||||||||||||||||||||
S2 |
1500 | 1500(1600) | 1575(1675) | |||||||||||||||||||||
| F | 128 | 228 | 328 | 478 | 628 | 728 | 878 | 1028 | 130 | 230 | 380 | 380 | 530 | 680 | 830 | 930 | 544 | 564 | 714 | 814 | 914 | |||
h |
2020 | 2550 | 2795 | |||||||||||||||||||||
重量 Weight |
小车 Handcart |
t |
7.6(8.4) | 11.5(12.5) | 19.9(21) | |||||||||||||||||||
总重量Total Weight | 室内Indoor | 22.7 | 24.4 | 26.4 | 29.2 | 32 | 36.8 | 40.5 | 43.8 | 26.5 | 28.4 | 31.1 | 35 | 38.4 | 43 | 46.8 | 50.4 | 56.4 | 60.3 | 64.8 | 67.7 | 72 | ||
| 室外Outdoor | 23.7 |
25.3 |
27.3 |
30.1 |
32.9 |
37.7 |
41.4 |
44.7 | 27.4 |
29.3 |
32.5 |
35.8 |
39.3 |
43.9 |
47.8 | 51.2 | 57.6 | 61.7 | 66.2 | 69.1 | 73.5 | |||
轮压 Max.Wheel Pressure | 室内Indoor | 10.2 | 10.9 | 11.6 | 12.7 | 13.1 | 14.7 | 15.8 | 16.8 | 14.8 | 15.9 | 17.3 | 18.6 | 19.6 | 20.9 | 21.9 | 22.9 | 27.3 | 28.4 | 30.6 | 31.7 | 32.1 | ||
| 室外Outdoor | 10.6 |
11.3 |
12 |
13.1 |
13.4 |
15.1 |
16.1 |
17.1 | 15.2 |
16.3 |
17.7 |
19 |
19.9 |
21.3 |
22.3 | 23.3 | 27.9 | 28.8 | 30.9 | 32 | 32.4 | |||
| 抓斗 Grab 型号Model u 113 109 110 105 106 101 102 127 123 124 119 120 115 116 141 137 138 133 134 129 130 类型Type 轻型 Light 中型 Medium 重型 Heauy 超重型 spuer heavy 轻型 Light 中型 Medium 重型 Heauy 超重型 spuer heavy 轻型 Light 中型 Medium 重型 Heauy 超重型 spuer heavy 容积Volume m3 2.5 1.5 1 0.75 5 3 2 1.5 8 4.8 3.2 2.5 容重Density t/m3 ≤1 >1-1.7 >1.7-2.5 >2.5-3.3 ≤1 >1-1.7 >1.7-2.5 >2.5-3.3 ≤1 >1-1.7 >1.7-2.5 >2.5-3.3 自重 Dead Weight kg 2633 2549 2615 2506 2568 2479 2546 4800 4803 4866 4850 4913 4730 4793 7841 7993 8143 8008 8159 8155 8305 主要尺寸(mm)MainSize Ba 1634 1444 1238 1160 2060 1764 1528 1416 2350 2078 1792 1628 Bb 2425 2175 2025 1875 2970 2670 2470 2230 3515 3135 2915 2665 Bc 3120 2740 2900 2530 2690 2340 2500 3900 3430 3590 3220 3380 3920 3080 4380 4050 4250 3750 3950 3430 3630 Hp 3135 2935 3015 2835 2915 2735 2815 3990 3747 3827 3640 3720 3490 3570 4775 4605 4705 4455 4455 4285 4385 Hb -3615 -3385 -3605 -3255 -3475 -3125 -3345 -4560 -4297 -4517 -4125 -4345 -3910 -4130 5530 5243 5483 4979 5219 4811 5051 | ||||||||||||||||||||||||
荐用钢轨 Steel track |
43kg/m | QU70 □90×90 | ||||||||||||||||||||||
电源 Power Supply |
三相交流3-PhaseA.C.50Hz 380V | |||||||||||||||||||||||
2025-07-09 本文被阅读 14017 次
| 上一篇:电动葫芦不能起动、运转的解决办法 | 下一篇:双梁桥式起重机得到广泛应用 |

